一、塞拉门的安装顺序:
现场检查门体尺寸和洞口尺寸---安装钢架---安装背板和轨道---安装滑轮组--安装驱动系统·--安装调试门体---安装地轨---整体调试

安装完成示意图
二、洞口预留
塞拉门的轨道弯弧部分必须放在洞口内,所以预留小的洞口的高度=门体高度+220mm
钢管底部定位尺寸=门体高度+10mm底部缝隙+50mm吊轴长度;
背板底部与钢管底部齐平

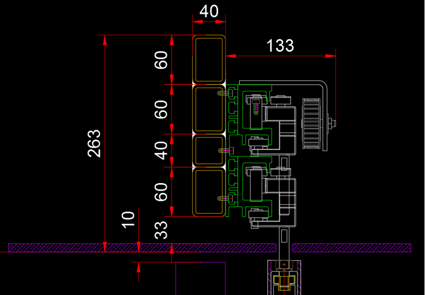
三、安装轨道

轨道示意图
1下轨道、2 T型滑块、3下轨道、4轨道背板、5上轨道、6地轨

背板安装到钢管上,上轨道、下轨道通过T形螺母和螺栓安装在轨道背板中,地轨根据门体预装情况安装在地面上。
二、塞拉门下轨道和钢管尺寸数值表:
下面两种关平方式主要是根据塞拉门的方钢尺寸、门体厚度和墙体厚度确定下轨道(90°弯轨)与墙体边缘距离大值,上轨道和吊点位置现场安装门体后确定。
其一种:同侧关平方式
下图适用于方钢管尺寸T=50mm;门体厚度范围50mm-180mm;
下轨道(90°弯轨)与墙体边缘距离D≤130mm。

塞拉门同侧关平模型示意图
注:数据表中的D指的是下轨道的直角边在对应墙体的左侧时的值;T指钢管尺寸;其他尺寸时具体情况具体模拟。
第二种:异侧关平方式下轨道与墙体边缘距离D≤130mm时,方钢管尺寸T的参数选择表。
注:数据表中的D指的是下轨道的直角边在对应墙体的左侧时的值;T指钢管尺寸;其他尺寸时具体情况具体模拟。
五、塞拉门安装时应注意事项:
1将轨道上部和地轨安装在指定位置上,轨道上部在安装过程中T形螺母不要拧的过紧,要保证上下轨道在轨道背板中可以移动,以便在调试过程中可以调节。
2 安装滑车、主动滑轮组、被动滑轮组时应先将部件组装好,从上下轨道的一侧放入导向槽中,根据实际的情况调节滑车、主动滑轮组、被动滑轮组的导向、承重轮组,保证在轨道内自由移动无干涉。
3将主、被动滑轮和止摆系统安装到门体时应保证一点固定,其他点可移动,先将主动滑轮组和门体把合,止摆系统、被动滑轮组把合在门体上时,保证止摆系统、被动滑轮组在门体长圆孔中可以自由移动,手动移动滑车、主被动滑轮组,找到止摆系统、被动滑轮组在门体运动过程中的安装点后再将止摆系统、被动滑轮组固定。
综上所述,由于塞拉门的用户要求及现场实际情况不全尽相同,所以每个项目安装前应该联系黑蚂蚁业务,针对项目的情况进行方案模拟试验,以保证塞拉门顺利运行。


